产品中心

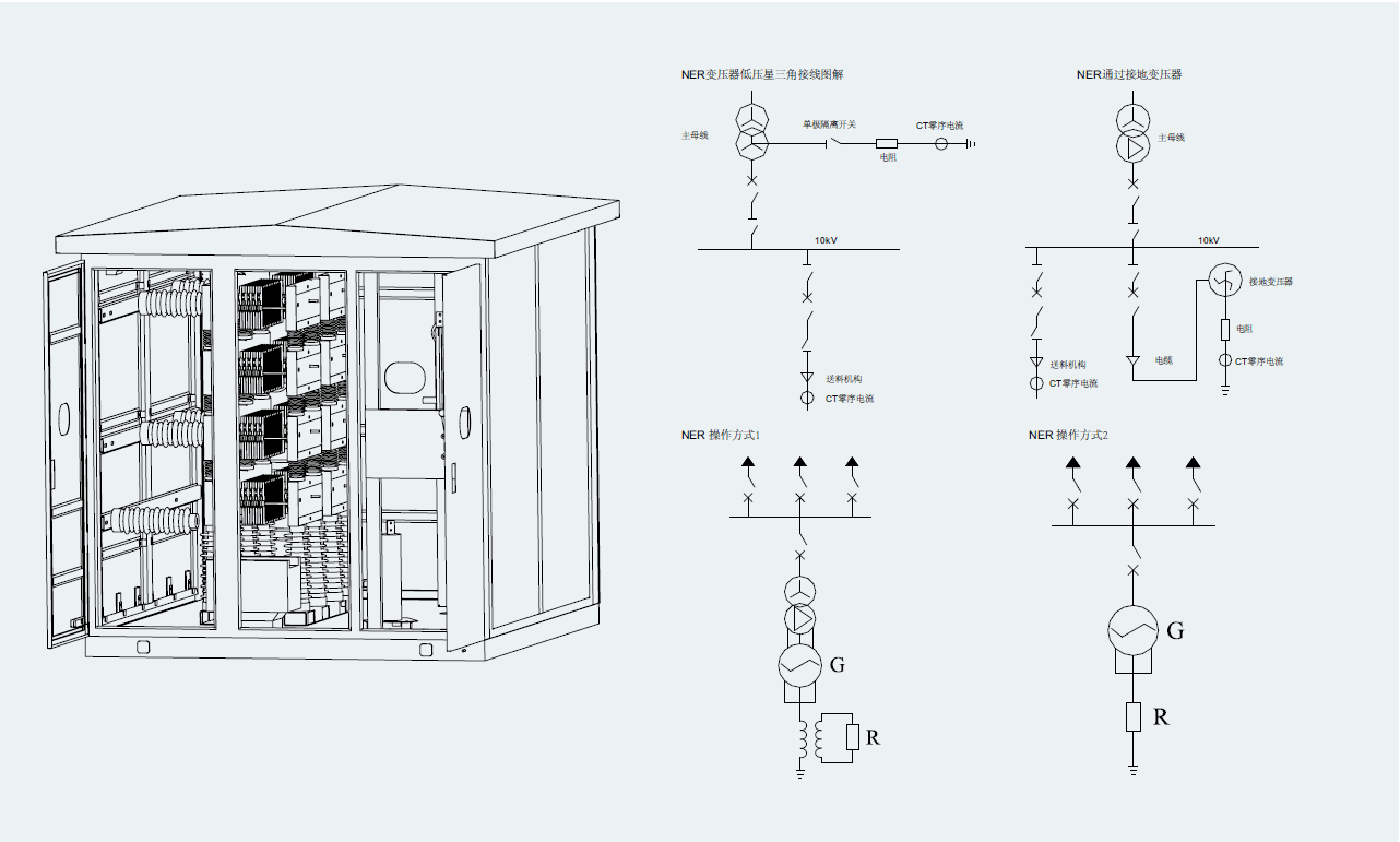
10~40.5kV中性点接地电阻装置

GP-NER系列

接地电阻器1.jpg

产品描述

概述

  • GP-NER 系列中性点接地电阻适用于大型工业企业、机场、港口、地铁等城市电力客户、大型发电机及电厂服务供电系统等。

  • GP-NER 系列中性点接地电阻元件采用进口特种不锈钢电热金属制成。具有耐高温、抗氧化性能好、抗拉性能强、电阻率高、电阻值稳定等突出特点,1000℃以下仍能保持电气性能和热力学性能,运行安全可靠。

  • 根据不同的连接方式或各种客户要求,可提供环氧树脂浇注干式变压器,零序电流互感器,单相断开开关。加热器、温湿控制器等。

应用标准

  • DL/T780-2001配电系统中性点接地电阻

  • GB6450干式电力变压器

  • IEE32-1972中性点接地电阻技术试验

  • GB/T11022-1999电气设备出厂检验规程电气设备安装等国家规范和电力行业标准

产品特点

  • GP-NER系列中性点接地电阻元件由特殊成分制成的不锈钢合金制成,专门用于中性点接地电阻。其主要特点如下:

  • 耐高温:熔点在1375~1500℃,最高工作温度 1000℃。

  • 抗拉强度强:强度700Mpa,在900~1000℃高温下机械强度保持不变。

  • 电阻率高:电阻率为1.25 Ω .m,有利于减小电阻元件的尺寸。

  • 电阻值稳定:电阻温度系数为1.05x102 Ω /℃,在高温下电阻值增加不大,有利于保护的灵敏度。

  • 抗氧化性能高:电阻即使在 1000℃的温度下也具有很高的抗氧化性能,深度适用于严重污染的环境。

  • 高韧性:电阻元件在温度剧烈变化时仍能保持高韧性。

  • 类型多样:根据电阻器的电流,可分为带式、栅格式、螺旋缠绕式、棱纹缠绕式、平顺缠绕式等。

  • 电阻器模块化:各类型电阻器均由标准元件组成,通过串联或并联来实现各种参数,元件更换方便。

  • 最佳的散热设计:箱体结构具有最佳的冷却气流通道。散热效果好,无局部过热点和烧坏点。

  • 运行寿命长:保证寿命 30年,部分电阻器已经运行了50年以上。

产品参数

  • 电压:0.4 kV~ 110 kV

  • 额定电流:可选

  • 额定电阻:可选;

  • 电流持续时间:10s、30s、60s、10min,连续;

  • 进出线:上进下出、下进下出、边进边出、边进下出等

  • 安装地点:室内/室外

  • 允许温升:760℃在10s, 30s, 60s, 610℃在10min,385℃可持续

  • 零序电流互感器:可选


图纸
概要视图和主要图表