产品中心

24kV金属铠装封闭式开关柜

GPN1-24

24kV金属铠装封闭移开式开关设备1.jpg

产品描述
概述
  • GPN1-24kV移开式金属铠装封闭开关设备是我公司在引进国外先进设计制造技术的基础上,自行设计开发的新产品。适用于3.6~24kV、三相交流 50Hz 或 60Hz 的电网接收、分配电能及控制、监测、保护。可布置为单母线、单母线分段系统。

应用标准

  • 符合 IEC298、EC 694、GB3906、DL404、DIN、VDE0670等标准,有完善、可靠的防误操作功能。

使用条件

  • 周围环境温度:上限+45°C,下限-25°C。

  • 海拔高度不超过1000m(标准),特殊订货产品最高可达4500m。

  • 大气环境:周围环境空气不受腐蚀性或可燃性气体、灰尘的严重污染。

  • 相对湿度:日平均≤ 95%,月平均≤ 90% 。

  • 地震烈度:≤8度。

产品特点

  • 外壳全部采用铝锌钢板经数控机床多次折弯成型,尺寸精度高,生产周期短,机械强度好,外形美观。

  • 手车架可分为CB手车、PT 手车、计量手车等。手车设有隔离/测试位和工作位,每个位置均设有定位装置,确保手车在指定位置时不会随意移动。

  • CB室装有专用导轨,用于手车在隔离/测试位置和工作位置之间移动。手车隔间后墙安装有由绝缘板制成的活动隔板。

  • 母线槽在绝缘套管的支撑下从一个隔间引到另一个隔间,通过分支母线与固定触点箱连接。主母线槽和间母线槽为截面为矩形的圆形铜条。

  • 电流互感器和接地开关可安装在电缆室后墙上。电位互感器和避雷器可安装在其内部。仪表室包括继电器部件、仪表通电指示器和规定的二次设备。控制电路布置在有足够空间和金属盖板的颈槽内。


技术参数

图纸
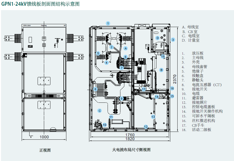
GPN1-24kV馈线板剖面图结构示意图